列王纪上第六章
ii. 建造圣殿(六1~38)
参:历代志下三1~14;约瑟夫的《犹太古史》Ⅶ.3.1-3。有关殿的外面(2~4节)、里面(15~30节)、入口处(31~35节)及内院(36节)之细节不足,令人无法重新想像出其原来的设计为何。有些资料(地点、方向、地基)被完全省略,这里的记载与后来在历代志下(三~四章)及以西结书(四十一~四十二章)187之出入可能是因为后来的装修所致,七十士译本的出入之处可能并非如此重要188,有些评语是作者所加的(11~13节)。有关材料、度量衡、装饰等细节可能来自档案报告,也可能是来自目击者的记忆,或是来自下达给匠人的口头指示189。
圣殿座落于大卫向亚劳拿购买而得的禾场(撒下二十四24),并非在耶布斯以上的圣殿原址。此区域现在已被耶路撒冷的Dome of the Rock(Haram ash-Sharif)所取代。其设计基本上是仿照会幕之规格,但面积则有两倍(出二十六15~25,三十六34),包括(i)入口大廊(“前廊”或“门廊”,~u^la{m),(ii)圣所(“外殿”,“本堂”he^k[a{l)及(iii)内殿(“至圣所”,d#b[i^r)。见:下图。

因为主前五八七/六年被占领后没有留下任何建筑遗迹,只能将圣殿的计划图与许多早期的庙宇互相比较,特别是叙利亚的Tell Tainat、Ebla、拉斯珊拉城,巴勒斯坦的米吉多、夏琐、示剑及亚拉得。因为来自Levant海岸及上述地区的匠人都有参与建造,相似之处在所难免。所罗门似乎将当时通行的“长房庙宇”的设计加以修改,在后面加上一个至圣所,并加上周围的建筑物190。
圣殿的名称、高度(可见度)及隔离(圣洁、分离)彰显出其特殊及神圣性。圣殿虽然被建在王室重地及宫廷建筑之内,但却并非“王室专用礼堂”,而是全国敬拜以色列之耶和华神的中心所在地,其目的是为了要放置约柜(19节)。虽然这是“神的殿”,却比其周围的建筑要小,但也有充裕的空间可供会众集体敬拜。参圣殿草图191。

a. 奠基日期(六1)
此日期与国家大事有关,这是巴比伦及亚述诸王记事的风俗,他们兴建圣殿时常列出他们前任者的详细工作内容;例如巴比伦的尼布甲尼撒王一世(主前1150年)便提及六百九十六年以前古其沙珥王,亚述的西拿基立(主前688/7年)也提及四百一十八年以前被 Marduk-nadin-ahhe 所偷的 Ekallate 神像192。其他的建筑物碑文也写明庙宇建成或上次维修的时间数。例如,亚述的撒缦以色一世(约主前1245年)在闪施亚达一世(约主前1820年)维修庙宇之后五百八十年又一次维修,杜库提宁努他王对以鲁书玛王在七百二十年以前所建立的庙宇加以维修,提革拉毗列色三世(主前约740年)所维修的庙宇曾经被维修过两次,闪施亚达一世维修过一次,六百四十一年后又被亚述坦一世维修过一次193。
四百八十年可能是大概数字,指已过了十二个世代(每一世代四十年,申一3),因此是作者在出埃及记至被掳中间的回顾。七十士译本的传统(440年)也同样地被视为由亚伦至撒督中间的十一个世代。这日期可与马太福音一7的年代架构相提并论。有些学者认为这是出埃及(约主前1446年)194后的实在年数,另外有些学者则认为“出埃及地”可能是指较后的一次事件。所罗门第四年乃相对的年代(希兰、迦太基奠基等),约于主前九五七/六至九六八/七年之间195。西弗月的解释就是二月(四/五月=巴比伦历的 Lyyar),因为主前二千年后已不再通行当地的历法(参:希勒月,V.38,马里、亚拉拉克及拉斯珊拉等碑文中也有相似的改变)。
b. 结构(六2~10)
在这整个叙事中,圣殿被称为“殿”(希伯来文为“家”,be^t[, byt[)或一如后来在亚拉得出土的一片瓦片所显示的,被称为“耶和华的殿”(byt(1)yhwh)196。其内部长
4. 通常被翻译为窗棂的专业用语至今仍未有明确的定义(MT 作 hallo^ne{ s% #qup{i^m
~@t]umi^m),可能是开于两边墙高处的狭窄天窗(NIV 参:RSV),好像中古世纪城堡的楔形窗口,外窄内宽198。但并无考古证据显示这个时期已有这种窗口。希伯来文中 h]allo^ne{ 被认定是叙利亚/亚述的一种典型的建筑风格,在主要建筑物(bi^t
hila{ni)的前面有精巧的门廊、旁屋、圆柱(参:亚述文 t]immu)、有门楣及门柱的门槛(亚述文为 askuppatu)、窗子及露台199。作者在此可能也就是指这种建筑。
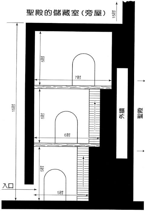
5~6. 旁屋乃是一种建在一个平台之上的“建筑”(NIV),可能是一如扶壁拱架一样的内凹(希伯来文 sela{ `
a^t[ ;
'ribs'“拱肋”;亚喀得文为 s]illu,“拱形物”,因此 NEB 译为“拱廊”)以作为通道之用。这可以解释这些旁屋倚墙而造,拱肋与外墙间的距离如何随着每一层而拓宽。托梁的架或“榫头”(REB;9~10节,mig{ra{`o^t[,“减少”)全都搁在正殿外墙周围,以避免将圣所的墙穿洞(7节)。这个储物区的总面积有三千零六十肘,乃为了库存供物,是圣殿本身内部的敬拜区面积的两倍200。圣殿可能的样式可参考下图201。

7. 对一个圣洁的建筑而言,铁制的工具被视为不敬,因此凿石必须在采石场(NIV、新译)中进行(参:出二十25)。
8. 旁边的储物室乃作为储藏设备、供物及可能包括祭司服饰用具之用,其通道乃经过南面的一个入口或是“右边角落”(JB;希伯来文:ket[ep{)进入底层(NIV 及 RSV 译为 'lowest'“最低层”)。MT 的“当中”显示楼梯(lu^lli^m,LXX、Vulg.、Targ.)引至此处,接着引至楼上(参:JB 及叙利亚版本之“天窗”)。“螺旋的楼梯”(NEB、和合)可能受到一个亚拉拉克庙宇的建筑特色之影响。
9~10. 完工后的圣殿有屋顶,内部并有香柏木贴墙(可能也有枞木及丝柏木,参8、14~16节)。木工包括平(spn)的地板及成列(s*#de{ro^t[)的栋梁屋顶,形成拱形(希伯来文:ge{b[i^m)。
c. 神重申应许(六11~13)
七十士译本没有这些经文。作者提醒读者,在什么样的属灵条件下,神才会居住在祂的子民中间,与他们同在(利二十六11~12)。若他们希望继续维持这个家室(此词包括统治之家室或王朝,撒下七12~16),必须守约。他们得到的应许是神永远不会丢弃或遗忘祂的子民(申三十一6、8;书一5;撒上十二22;来十三5)。这些有力的话语可能是在这个工程最重要的关键时刻藉着先知或是藉着梦(王上三5,九2~9)传达出来的。
d. 内部木工(六14~18)
这里的专用词语之意义尚未完全明朗化,其中重复出现或解释性的句子可能是在圣殿被毁时作者的注解。松木板(第15节,“香柏木”,参五6)可以形成一块拱形(s]al`o^t[)或拱形的屋顶(七十士译本读为 qo^ro^t[ “屋顶”,而非 MT 的 qi^ro^t[“墙”),请参考第10节。
16. 内殿(REB 译为 'shrine')在此的定义便是至圣所(REB 译为“最里面的部分”)202,与外殿(he^k[a{l)是“分开”(NEB)、遮闭的。内殿一字(d#b[i^r)惟一的意义便是指圣殿建筑203,也可以指其与“后面”的部分有关(希伯来文, Ⅱ da{b[a{r,“背向”;亚喀得文为 daba{ru),而非“神谕”('oracle',希伯来文 Ⅰ da{b[a{r,“说”,AV 及 RSV 之译法)。
18. 七十士译本没有这句有关木工的总结,与第19~22节对贴金之描述也无甚相关。野生水果的图案(NIV 与现中作“葫芦”,和合作野瓜,参:王上七24;王下四39~40)及初开的花(NIV;JB 作“玫瑰花饰”,LXX 作“百合花”)不一定是多产的象征,乃那个时代常用的装饰主题。
e. 内殿(六19~28)
此处主要的目的是为了放置约柜,神的约版(律法)放置在箱匣中(出二十五16;申十1~5)。圣殿应当是保守及见证律法之所。根据古代近东宗教建筑的原则,最圣洁的地方应当是一块完全的立方体204。内殿205及外殿之间高度的差别是因为天花板较低(上面有一间楼房,代下三9),屋顶在尾端倾斜206,或是一个升起讲台的阶梯。
20. 精金或最好的“红”金(参:NEB)象征过去的荣耀、绚烂及纯洁(参:启二十一18~21);圣殿像会幕一样亦都使用纯金。其他古代建筑物可以证明如此广泛的使用纯金作装修的风俗,甚至连地板都贴上金子(30节),绝非夸张207。
21. 金链子(ratti^qo^t[,惟在此处出现)可能是挂或拉幔子(或帐幕)所用(参:代下三14;太二十七51;来六19)。挂在(希伯来文意为“使经过”),被 NEB 解释为“用金链子拉帐幕”。
22. 这里的坛是为了盛香而设(七48;来九3~4)。
23~28. 。在此可能指带有叙利亚/腓尼基风格的有翼狮身人面像,或是指非人类的保护者(亚喀得文为 kuribu),保卫宫殿及神殿通道的入口,随时准备赶走恶魔,也可能是指作出赞颂姿态的物体(亚述文为 karibu)。另有人认为这是支持性的物体,神无形的坐在其上(赛三十七16;诗八十1),类似君王宝座椅臂上的有翼物体(参:米吉多或宁录的象牙)208。它们可能与有十肘高,展翼遮盖眼睑或“施恩座”(AV,出二十五17~22,三十6)、其翼相连,阔及内殿全部宽度的物体不同。它们的位置不详,可能是在约柜的两边(八6~7),也可能是在墙尾面对幔子(代下三10~13)。实际上它们可能代表神无所不在的保护及荫庇之翼。
f. 雕工及门楣(六29~38)
此处所列出的是第18节所没有提及的装饰。、棕树(palmette?)及初开的花被刻在贴金的箱匣及叙利亚式的图案(宁录象牙)之上。若视之为象征,则这些可能代表神的花园(伊甸园),现在惟有藉着救赎才有可能再次进入。
29. 内殿及外殿(NIV 及 RSV)乃译自希伯来文的“由外到内”(AV 译为“内及外”)。
31~35. 门乃是由橄榄木(NEB 译为“野橄榄”;希伯来文为 `@s]e^-s%emen)作成。雕刻细节一再重复乃古代清单中常见之风俗,因此不应只视之为无用的注释。门有四面侧壁,或作“门楣及门柱形成一个五角形”(RSV),也可能是指门至内殿的距离乃全宽的“五分之一”(AV,四肘等于大约
36. 内院的存在表示还有一个更大的外院(八64;代下四9,参:“上院”,耶三十六10)。这种将一层木头置于两层石头之间的建筑技术已经因叙利亚几处建筑物的出土而被证实,这种方法也可以保护建筑物免受地震伤害210。
37~38. 殿和一切属殿的都按着样式造成,共费时七年。这是指着“按一切说明(dbr)及一切计划”(希伯来文 mis%pat],吕译)。布勒月按旧历便是第八个月,参:第1节。所罗门由头到尾都用当时最好的技术及材料为他的神作工,这显示他当时对神的委身,这是所有真正敬拜神的人应有的态度(参7节;太二11;林后八1~5,九6~15)。
187 如 J. B.
Taylor 所著之 Ezekiel, TOTC (London:Tyndale Press, 1969), pp. 254~256.
188 D. W. Gooding, '
189 Noth,上引书,102~106页。
191 取自 IBD, p. 1527。参:NBD(1962年新版),1243页;图204。
192 J. A. Brinkman, A Political History
of Post-Kassite
193 S. Lackenbacher,Le Roi Ba^tisseur(Paris:E*ditions Recherche sur les ciVilisations, 1982), pp. 15~19, 180.
194 J. J. Bimson, Redating the Exodus and
Conquest(Sheffield: JSOT Press, 1978)再一次地主张其日期应为主前十五世纪。
195 参约瑟夫的 Contra
Apionem I.18.116~117; M. B. Rowton,'The Date of the
Founding of Solomon's Temple'; BASOR 119, 1950, pp. 20~22; H. Y.
Katzenstein, 'Is there any Synchronism between the Reigns of Hiram and
Solomon?', JNES 24, 1965, pp. 116~117; J. Liver,'The Chronology of Tyre at
the Beginning of the First Millennium BC', IEJ 3, 1953, pp. 113~120; H. Y.
Katzenstein, The History of Tyre(Jerusalem: Schocken Institute, 1973).
196 IBD, p. 1531(主前第六世纪)。
197 王室肘度平均数值为:希伯来51.82公分;巴比伦50.3公分;埃及52.45公分;参:NIV 附注。
198 参:结四十16;叙利亚文是“倾斜狭窄”('oblique and narrow')而非“开开关关”('opening
and closing',与BA 4, 1941, 26页之立场相反)。J.
Ouellette, 'atummi^m' in 1 Kings xii: 4', Bulletin
of the
199 J. Bo:rker-Kla:hn, 'Der bi{t
hala{ni des A]ssur-Tempels', ZA 70, 1981,
pp. 29~59, 258~2743; hila{ni 也被形容为是有“鼻”或“开口处”(appa{te)及“折叠门”(bi{t muterre{ti)的。
200 K. A. Kitchen, 'Two Notes on the
subsidiary rooms of Solomon's
201 参:G. E. Wright, 'Solomon's
202 亦即最高级的 'Holy of Holies'。
203 王上及王下;代下三~五;诗二十八2。
204 D. J. Wiseman, Nebuchadrezzar and
Babylon(Oxford: British Academy, 1985), pp. 71~73;又如以西结书的祭坛尺寸(四十三16)及殿塔(ziqqur-rats);'A Babylonian Architect?', Anatolian
Studies 22, 1972, p. 143.
206 Davey,上引书,109页。
208 这些物体在 ANEP 上有所描述,附注128、332;IBD,974页, 1560;参:M. E. L.
Mallowan,
209 亦即较宽的主要入口为五肘(=约7.5英吋;2.5公尺);A. R. Millard,'The Doorways of Solomon's
210 IBD, p. 102; H. C. Thomson, 'A
Row of Cedar Beams', PEQ 92, 1960, pp. 57~63.
──《丁道尔圣经注释》